如今的社會在城市買房已經不是主流了,反而更多的人更愿意回鄉蓋別墅,然后鋼結構別墅作為最新的環保建筑已慢慢成為人們的首選,特別是鋼結構別墅的抗9級地震為家人的安全保駕護航,在這里小睿給大家推薦一套480平米三層別墅的設計圖,感謝大家的一路支持。
建筑基礎信息:
占地尺寸:11.9X12.9米
占地面積:153.51平方米
建筑面積:480平方米
別墅實物效果圖 ▲
別墅正面立體設計圖 ▲
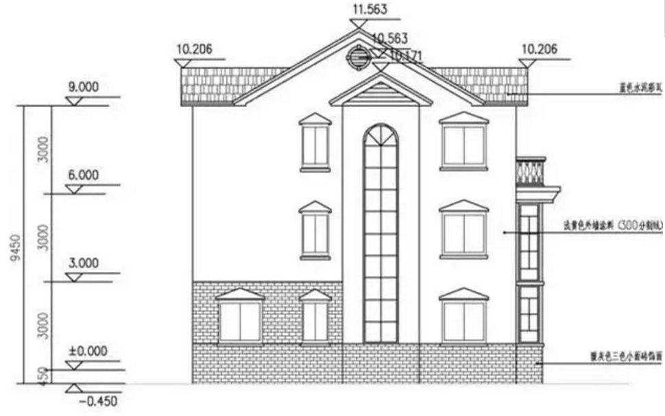
別墅背面立體設計圖 ▲
(背立面:樓梯間貫通玻璃極大增加采光面,即使兩側不采光,室內大部分空間也會亮堂)

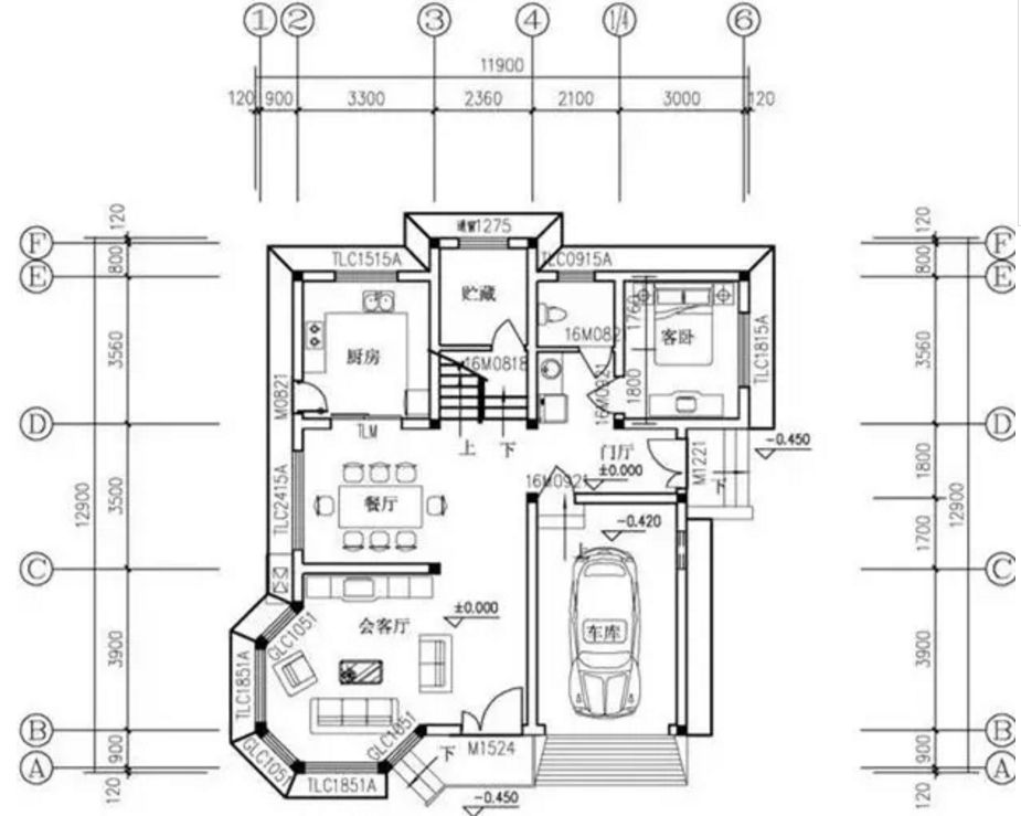
第1層平面設計圖 ▲
( 第一層:半八角型的布局加上挑空客廳,非常大氣;餐廳廚房相連,與客廳隔開,更具別墅范;北側留客臥一間,樓梯下設儲藏室)

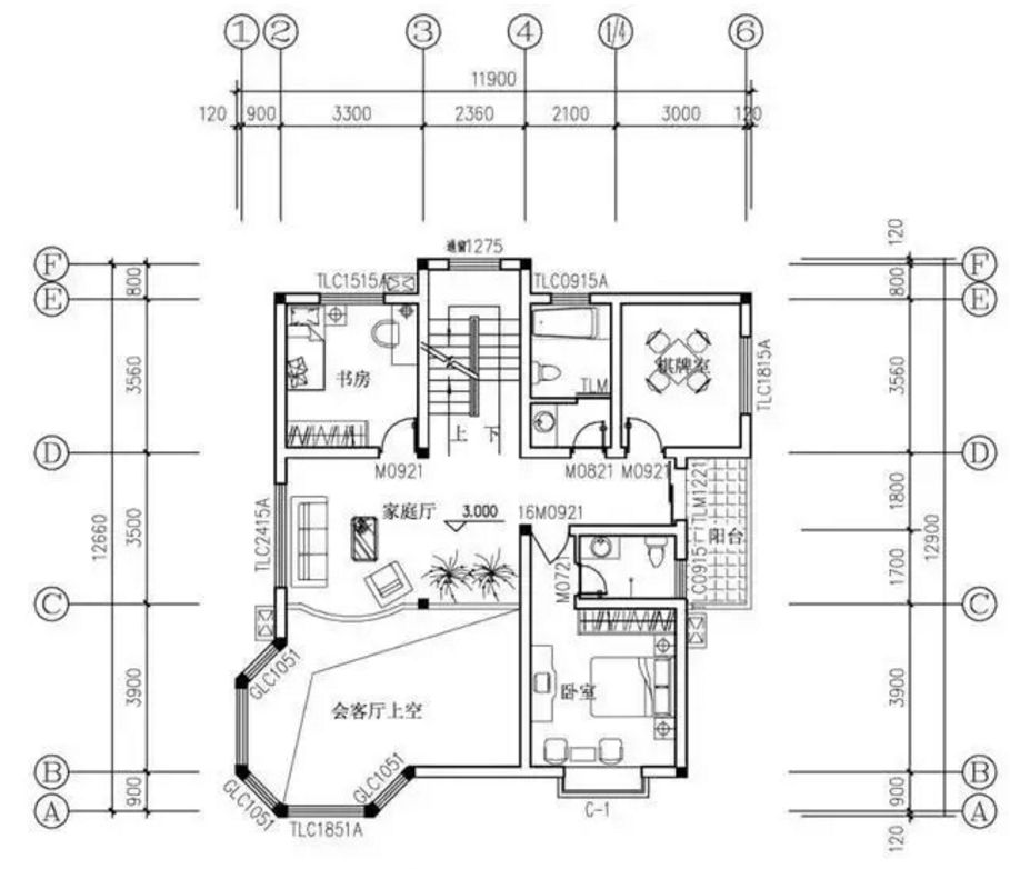
第2層平面設計圖 ▲
( 第二層:在家庭廳可以俯視客廳,主臥朝南是帶有衛生間;北側兩個房間圖上標注的是書房和棋牌室,實際建造中可以靈活安排)

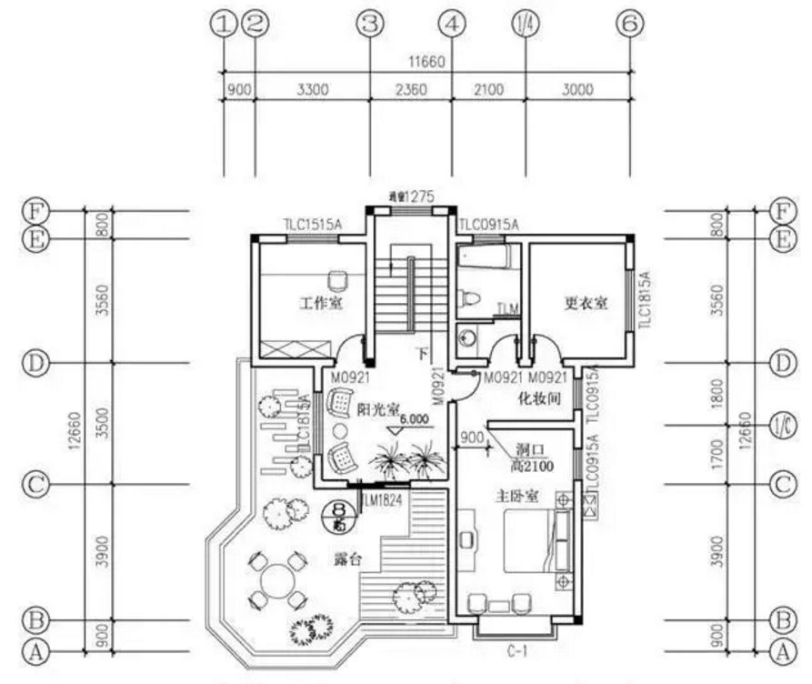
第3層平面設計圖 ▲
( 第三層:3樓是房主專用,可以算是超豪華套間了,臥室帶更衣室,化妝間,衛生間,還有工作室和陽光房。露臺邊房間直接設計為陽光房是亮點,八邊型露臺設計也非常有特色。屋頂為坡屋頂,可以有效隔熱。)
深圳市睿婕鋼結構建筑有限公司是一家集建筑造型設計、建房安裝生產、裝修服務于一體的專業性公司,有著5000平方的大型廠房和1200平方辦公室。公司主要從事輕鋼別墅,美麗新農村建設,特色小鎮建設,環保建筑等,睿婕輕鋼別墅公司有著完善的輕鋼別墅建設流程,成熟的市場宣傳渠道,全國輕鋼別墅前三名品牌。
此內容來源于網絡,如涉及版權問題請與我們聯系。