圖紙介紹:中國最美的二層建筑四合院設計圖紙及效果圖,外觀圖片大氣,戶型方案經典實用,是外國人模仿不來的房子四合院是中國建筑的代表性之一,凝聚了歷史文化,不僅如此,四合院的風水也是極好的,聚氣聚財,住的人都是有福之人。在自家宅基地上,建上這么一做白墻黛瓦、庭院曲徑幽深的四合院,簡直是讓人迷醉不已。
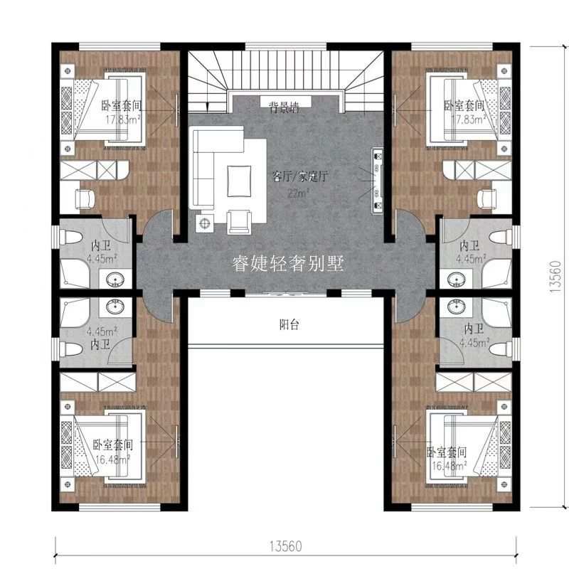
占地面積:13.56m*13.56m,130平方米左右;
建筑層高:二層;
建筑高度:8.9米(含屋頂);
設計功能:
一層戶型:堂屋/大廳、客廳/茶室、廚房、餐廳、臥室(帶衛生間)X2、衛生間;
二層戶型:客廳/家庭廳、臥室(帶衛生間)X4、陽臺;





此戶型睿婕已申請版權,請勿抄襲,違者必究。
只為睿婕客戶所享
江西漢良房屋科技有限公司 Copyright©2012-2023 All Rights Reserved 備案號:贛ICP備2023004803號-5
聲明:本站部份內容收集于互聯網,如有侵犯您的版權,請聯系1262411147@qq.com及時刪除!