圖紙介紹:2023年最新中式三層別墅,外墻采用米白色真石漆工藝,搭配棕褐色線條,簡潔大方,耐看,玻璃木紋格柵顯得更有仿古中式韻味,室內布局空間開闊,合理,一家人居住非常合適,簡潔大氣的戶型,雖說農村大多數是獨棟房屋,不過采光也是首要,要采光落地窗自然不能少,露臺也必須要有。
占地面積:10.76m*9.96m,占地108平方米左右;
建筑層高:三層;
建筑高度:12.3米(含屋頂);
設計功能:
一 層:客廳、廚房、餐廳、臥室、衛生間、儲藏室;
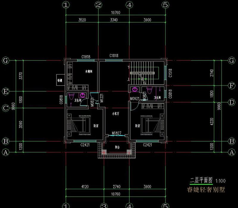
二 層:小客廳、臥室(帶衣帽間、衛生間)、臥室、衛生間、陽臺;
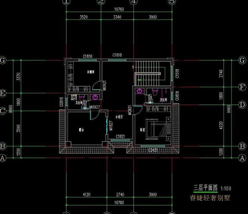
三 層:小客廳、臥室(帶衛生間)、衣帽間、露臺、衛生間;






江西漢良房屋科技有限公司 Copyright©2012-2023 All Rights Reserved 備案號:贛ICP備2023004803號-5
聲明:本站部份內容收集于互聯網,如有侵犯您的版權,請聯系1262411147@qq.com及時刪除!