圖紙介紹:現代別墅設計圖紙帶兩種效果圖,145平方戶型三層別墅設計方案精選,建房就選現代風別墅,時尚前衛,簡約大氣,住著及其舒適,現代風別墅,前衛拉風,集時尚潮流于一體,外型美觀,還帶家用電梯,關鍵是室內布局還很實用。深受廣大年輕朋友的喜愛,這款別墅采用平屋頂設計,外型真是極好看,造價經濟,建在村里獨一棟,是難得的好戶型
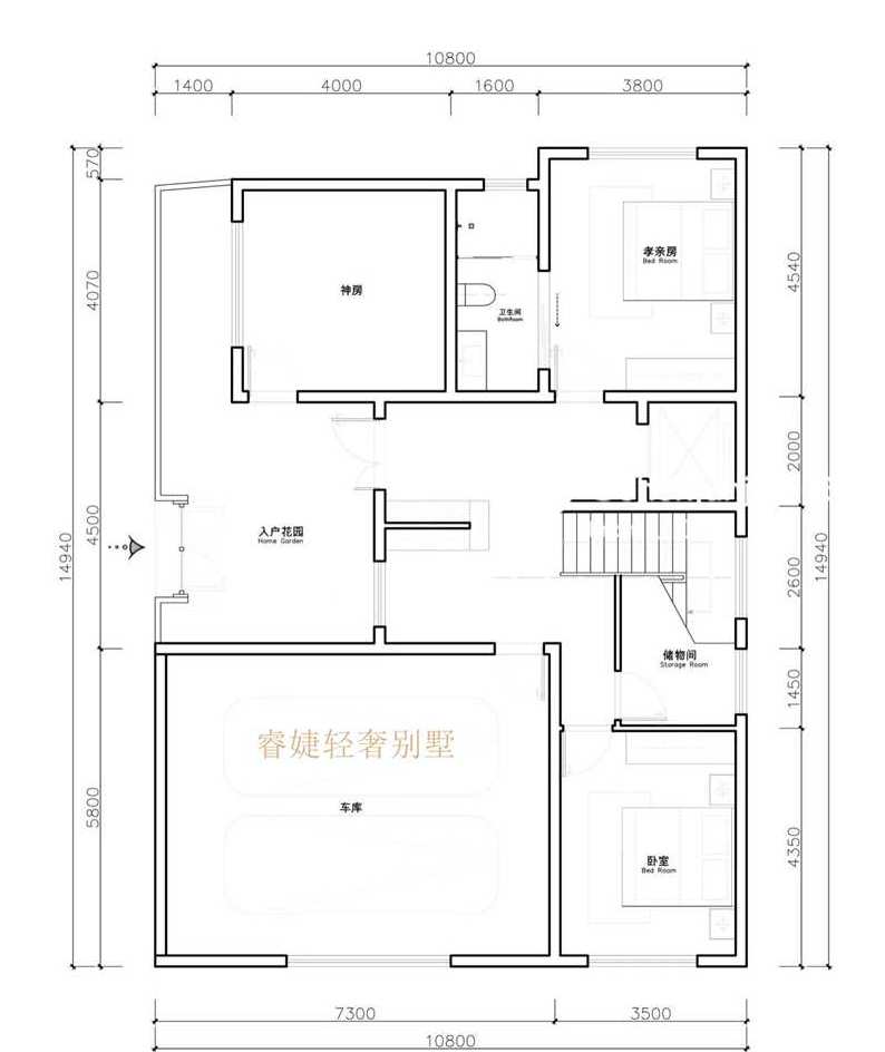
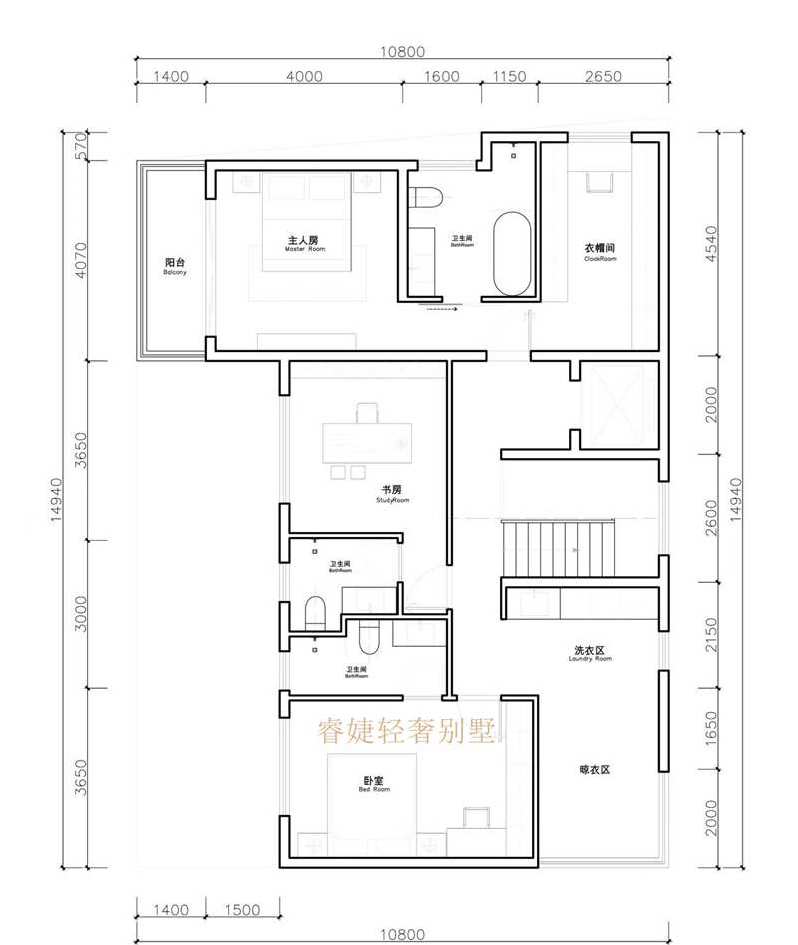
占地面積:14.94m*10.8m,145平方米左右;
建筑層高:三層;
建筑高度:12.1米(含屋頂);
設計功能:
一層戶型:入戶花園、電梯、神房、孝親房(帶衛生間)、臥室、車庫、儲物間;
二層戶型:父母房(帶衣帽間、衛生間)、廚房、餐廳、衛生間、客廳、露臺;
三層戶型:主人房(帶衣帽間、衛生間、陽臺)、書房、臥室(帶衛生間)、晾衣區、衛生間;







此戶型睿婕已申請版權,請勿抄襲,違者必究。
只為睿婕客戶所享
江西漢良房屋科技有限公司 Copyright©2012-2023 All Rights Reserved 備案號:贛ICP備2023004803號-5
聲明:本站部份內容收集于互聯網,如有侵犯您的版權,請聯系1262411147@qq.com及時刪除!