圖紙介紹:140平方米新農村四層房屋設計圖紙,農村自建推薦,這款四層別墅的外觀,色調沉穩大氣,層次感十足,外加柱式裝飾效果,猶如宮殿般的感覺,戶型方正實用,室內布局超級贊,不得不說,宅基地小,不用怕,四世同堂的戶型來了!在農村建一棟這樣的別墅,鄰居看了都只有贊美的份。
占地面積:11.00m*12.50m,140平方米左右;
建筑層高:四層;
建筑高度:15.3米(含屋頂);
設計功能:
一層戶型:門庭、客廳(挑空)、餐廳、廚房、臥室X3、衛生間;
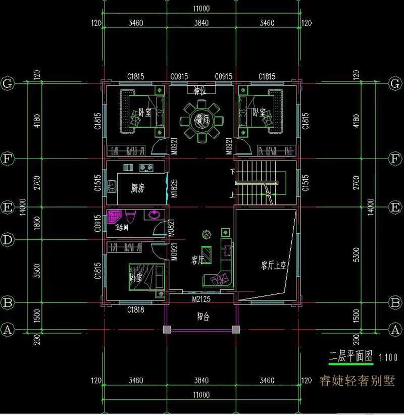
二層戶型:客廳上空、小客廳、臥室x2、餐廳、廚房、衛生間、陽臺;
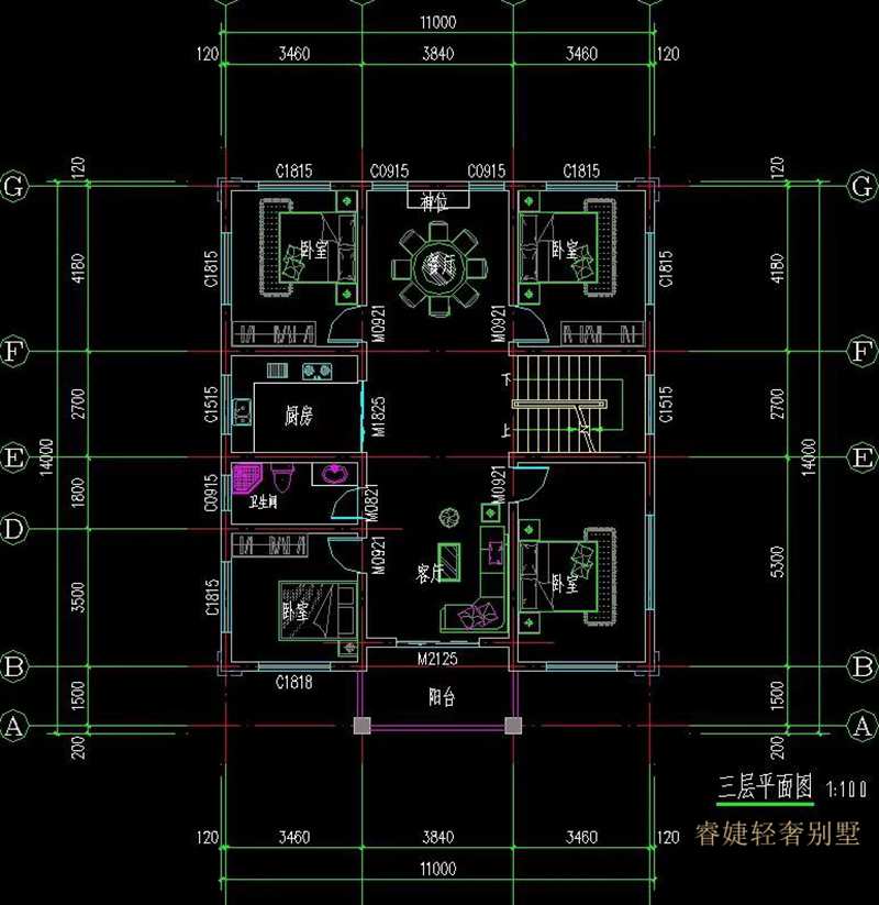
三層戶型:客廳、臥室×4、餐廳、廚房、衛生間、露臺;
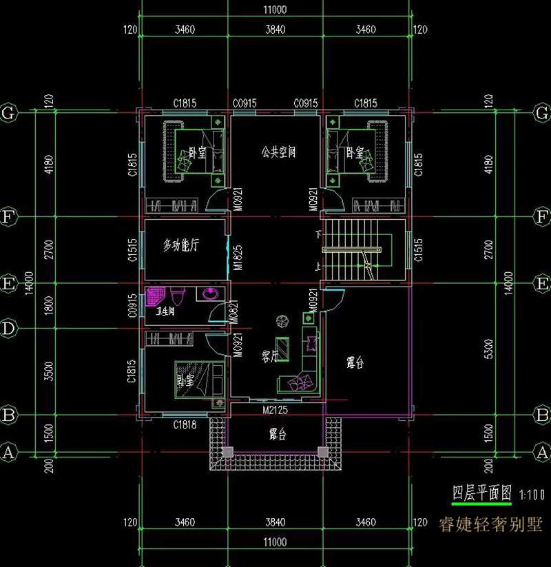
四層戶型:客廳、臥室X3、多功能廳、衛生間、露臺;







此戶型睿婕已申請版權,請勿抄襲,違者必究。
只為睿婕客戶所享
江西漢良房屋科技有限公司 Copyright©2012-2023 All Rights Reserved 備案號:贛ICP備2023004803號-5
聲明:本站部份內容收集于互聯網,如有侵犯您的版權,請聯系1262411147@qq.com及時刪除!