圖紙介紹:三層(兩層半)雙拼新農村別墅設計圖紙及外觀效果圖,設計公共大露臺,相親相愛一家人!新農村兄弟雙拼自建房戶型,這樣不僅可以節省開支,還能避免婆媳矛盾,而且時尚簡約的造型,怎樣都不會過時,兄弟都說好!外墻面棕色系的文化石和米黃色石漆交相呼應,伸出式門檐和陽臺不僅增加了利用空間而且使房子凹凸有致,看起來大氣又舒適,共露臺設計,大門處用方形羅馬柱裝飾,藍色琉璃瓦的覆蓋,體現出整棟別墅的清新靚麗之感。三層共用的大露臺,不僅滿足了農村生活的晾曬需求,還是親朋好友聚會的絕佳場地。
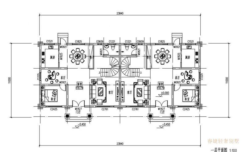
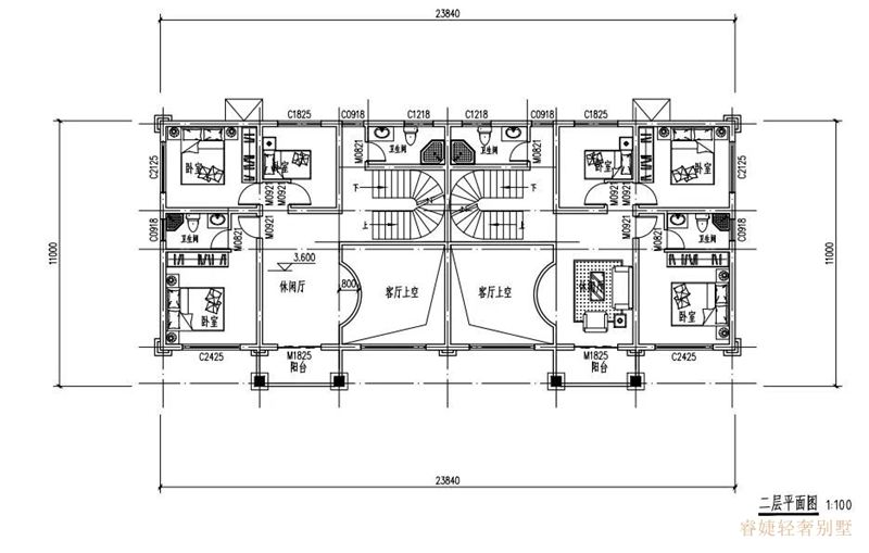
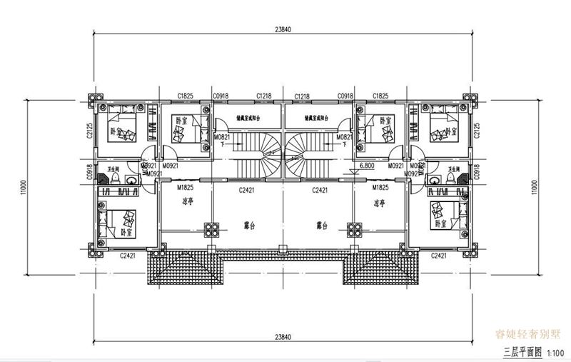
占地面積:23.84m*11m,240平方米左右,單戶120平左右;
建筑層高:三層;
建筑高度:12.2米(含屋頂);
設計功能:
一層:堂屋、客廳、餐廳、廚房、臥室、茶廳、衛生間;
二層:客廳上空、休閑廳、臥室(帶衛生間)、臥室x2、衛生間、陽臺;
三層:臥室x3、衛生間、涼亭、儲藏室或陽臺、共用露臺;






此戶型睿婕已申請版權,請勿抄襲,違者必究。
只為睿婕客戶所享
江西漢良房屋科技有限公司 Copyright©2012-2023 All Rights Reserved 備案號:贛ICP備2023004803號-5
聲明:本站部份內容收集于互聯網,如有侵犯您的版權,請聯系1262411147@qq.com及時刪除!