圖紙介紹:新中式三層豪華大氣別墅戶型圖,高端自建房屋設計圖,帶地下室設計,土豪專享戶型,別墅外觀圖片采用藍色坡屋頂搭配白色的外墻漆,配上棕褐色線條點綴,色調淡雅溫馨,具有家的歸屬感。落地式的門窗增加了別墅的通透性。屋檐伸展出來較大,能更好地保護外墻和增加造型的美觀性。頂層利用露臺和陽臺來塑造外觀的層次感
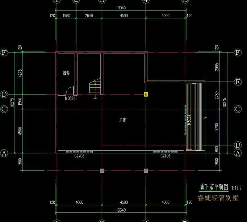
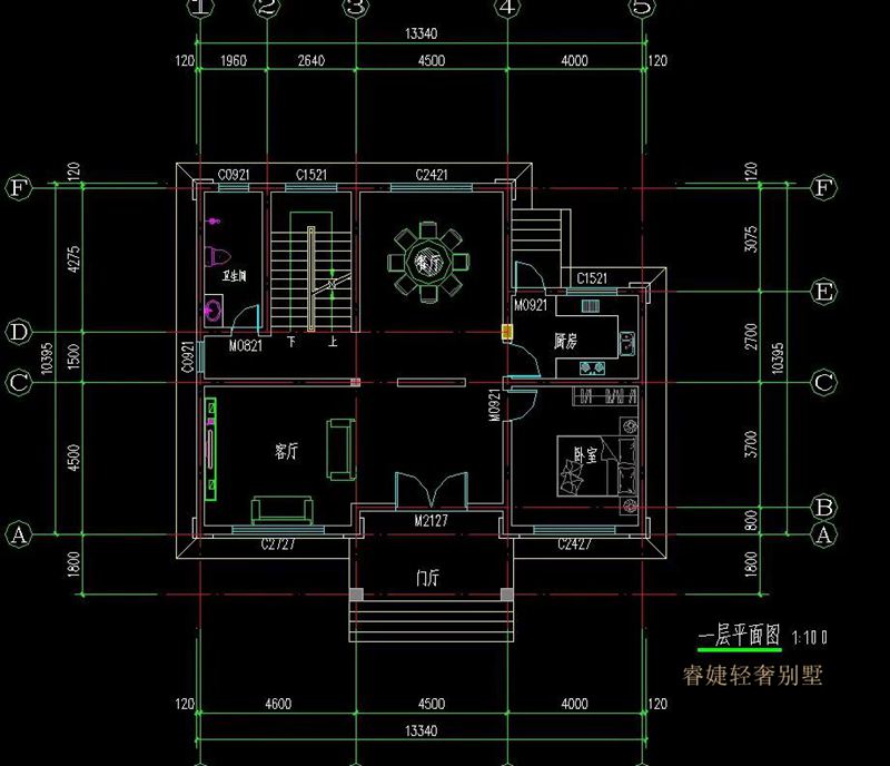
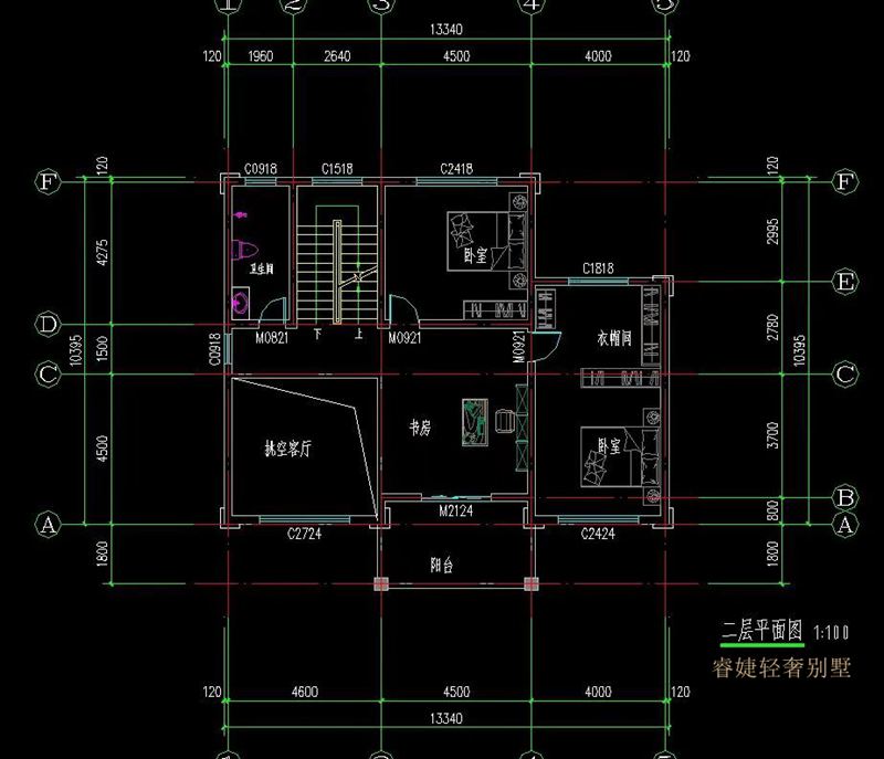
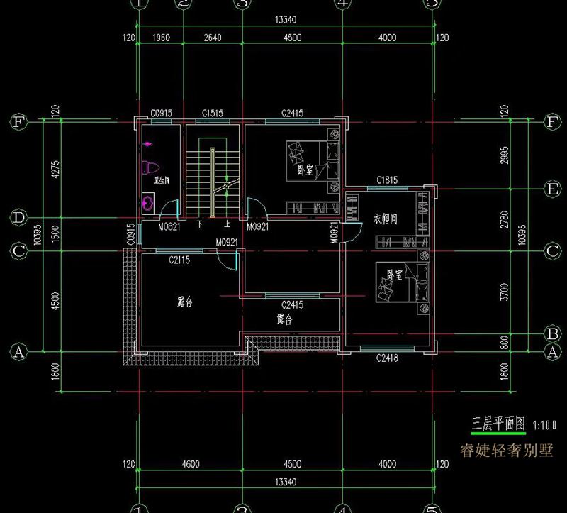
占地面積:13.3m*10.39m,138平方米左右;
建筑層高:三層;
建筑高度:11.9米(含屋頂);
設計功能:
地下室:酒窖、車庫;
一層戶型:客廳、餐廳、廚房、臥室、衛生間;
二層戶型:挑空客廳、臥室(帶衣帽間)、臥室、書房、陽臺;
三層戶型:臥室(帶衣帽間)、臥室、衛生間、露臺;







此戶型睿婕已申請版權,請勿抄襲,違者必究。
只為睿婕客戶所享
江西漢良房屋科技有限公司 Copyright©2012-2023 All Rights Reserved 備案號:贛ICP備2023004803號-5
聲明:本站部份內容收集于互聯網,如有侵犯您的版權,請聯系1262411147@qq.com及時刪除!